Поставим вопрос ребром: нужен ли нам Гостиный двор (после трех лет войны)? Или пивзавод Рихерта на Подоле? А бывший спиртзавод на Кудрявской (во времена совка даже таксисты не знали эту улицу, но магическое название завода было им известно). На протяжении длительного времени «Казенный винный склад №1» (спиртзавод) вместе с Андреевской церковью был ландшафтной доминантой киевских гор, пока ее не изуродовали соседние архитектурные «шедевры» советских времен, в частности Дом торговли.
Все упомянутые и неупомянутые полуруины находятся в очень разном состоянии. А может, лучше сделать, как с Сенным рынком, — снести и построить ЖК «Ярославов град»? (Кстати, его до конца так и не снесли, и руины прячутся за забором, из-за чего их «не видит» Департамент городского благоустройства, который довольно долго возглавлял нынешний глава КГВА Тимур Ткаченко. — А.С.). Если же нет, то как вообще превратить промзоны в общественные пространства? В Киеве к землям промышленного и научно-производственного назначения сегодня относятся 3,12 тыс. га, это практически равно суммарной площади киевских парков — 3,37 тыс. га. И как сохранить то, что осталось нам от бывших хозяев города?
Тайны старого кирпича
Современные «защитники старого Киева» сосредоточиваются преимущественно вокруг невзрачных жилых одно- и двухэтажек, привлекательность которых — больше в возрасте, чем в красоте. Ставлю выше кавычки, поскольку знал таких «защитников», умевших поднять жителей соседних домов на борьбу с «незаконной застройкой», но в какой-то момент исчезавших неизвестно куда после… «переговоров» с застройщиками.
Объектам старины промышленного или общественного назначения в этом не повезло: там никто не жил, не приватизировал квартир, соседи к ним были безразличны, поэтому они тихо умирают, как пожилые люди, у которых нет родственников. Хотя несколько драматизирую — после них остаются квартиры или земельные участки, поэтому в «наследниках» недостатка нет.
Так умер и кирпичный завод, и завод солодовых экстрактов, более известный как пивоварня Михаила Рихерта (оба на столичной улице Кирилловской), но после них осталось несколько зданий, объявленных памятниками архитектуры местного значения, и главное — 11 га бесценной земли на Подоле (здесь зародился Киев!). Хоть эта земля и находится в коммунальной собственности, но это не значит ни-че-го. Просто девелопер (так теперь называют себя застройщики) строит на ней ЖК, продает площади и получает гешефт, извиняюсь — прибыль. Довольно парадоксально, но законодательство выстроено так, что в дальнейшем городской бюджет не получает ни гривни от этой земли — жители жилой застройки земельный налог не платят.
Так или иначе, но после смены нескольких арендаторов земельный участок по адресу Кирилловская, 35, объединяющий территории указанных заводов, оказался в распоряжении компании A Development, которая осуществила знаковую для Киева реконструкцию Арсенальной площади. (Правда, этот проект зацепил лишь краешек завода «Арсенал», а будущее остальной огромной территории в самом центре столицы сейчас неизвестно). Сайт компании A Development сейчас недоступен, поэтому узнать ее планы на будущее напрямую невозможно.
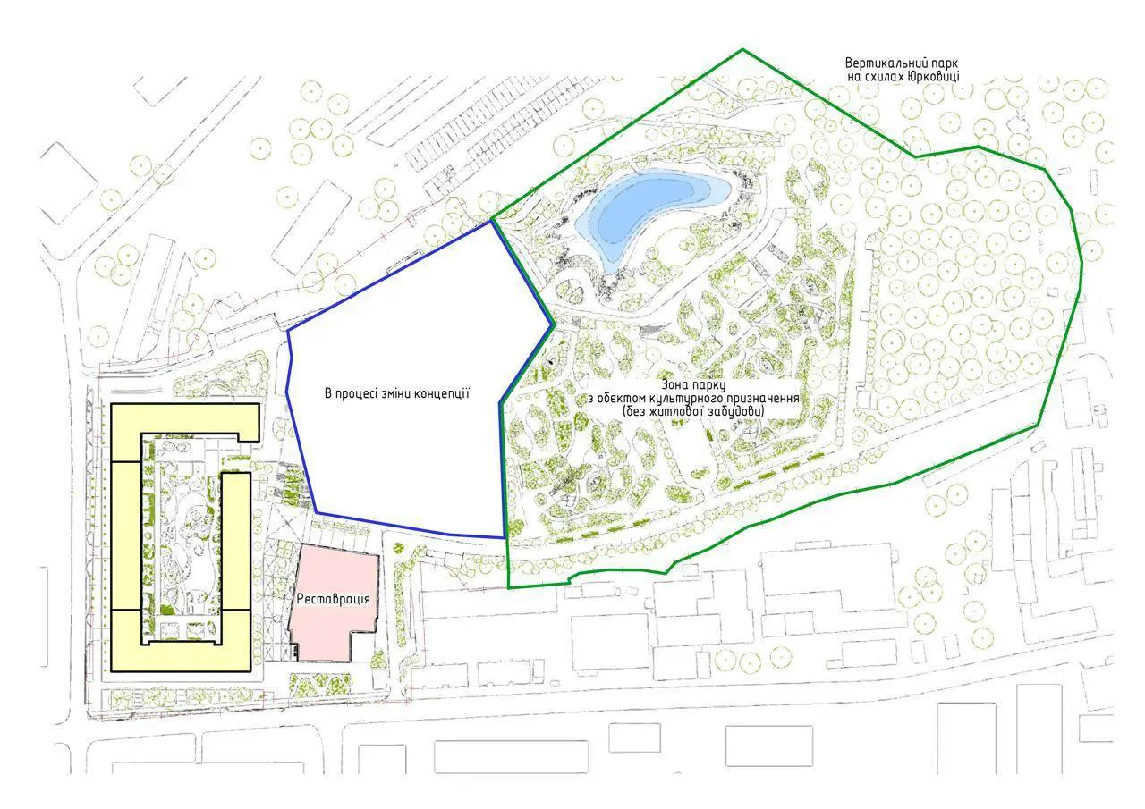
Из посторонних источников известно, что на Подоле A Development планирует реализовать амбициозный проект «Рихерт&Парк», суть которого заложена в названии: жилой комплекс (прибыльная часть) на 110 тыс. кв. м на площади 5,5 га плюс общественный парк (неприбыльная часть) площадью 6 га. В парке планировалось превратить старый технический водоем кирпичного завода в озеро и облагородить не только близлежащую территорию, но и склоны и верхнее плато летописной горы Юрковицы, которая сейчас практически недоступна. Выглядит это, на первый взгляд, довольно альтруистично (хотя парк с озером, бесспорно, повысят спрос и цены на жилье), но, вероятно, всем понятно, что за вторую часть проекта застройщик-девелопер тоже планировал получить преференции.
Дело в том, что бывший владелец пивзавода Рихерта, компания «Акролит», в 2016 году разработала так называемое историко-градостроительное обоснование, согласно которому получила градостроительные условия и ограничение на строительство высотой 60 метров, что грубо нарушает не только тогдашние ГСН, но и Генеральный план Киева. Более того, указанный земельный участок расположен в пределах исторического памятника местного значения «Исторический ландшафт киевских гор и долины реки Днепр» (охранный номер 2600189). Согласовал такое «обоснование» руководитель (теперь бывший) Департамента охраны культурного наследия Александр Никоряк (желающие могут познакомиться с этой незаурядной в определенном смысле личностью здесь).
Насколько законна упомянутая бумажка (историко-градостроительное обоснование) — даже обсуждать не стоит, но она привела к непрогнозированным для застройщика последствиям — первой возмутилась общественность, пошли общественные слушания, какие-то совещания, меморандумы взаимопонимания, петиции и другие волны в социуме. В итоге застройщик заявил, что мог бы строить 42 м, но идет «навстречу людям» и согласен на 36 м. В качестве аргумента он приводил то, что высота горы Юрковицы, под которую подбирается «Рихерт&Парк», все равно больше на 36 м. Но фокус в том, что уже первые новостройки заслонят ее, и с Кирилловской горы ее видно не будет. Именно так новострои заслонили живописные склоны долины Глибочицы.
Новый глава ДОКН (ранее известный общественный активист) Марина Соловьева категорически отказалась идти на какие-либо «уступки» застройщику. По ее словам, скандальное историко-градостроительное обоснование в любом случае утратило силу по срокам, а такого рода документ ликвидирован решением Министерства культуры «как класс». Это она подтвердила и в разговоре со мной: «Единственное, чем нужно руководствоваться, — это Генеральный план города», а из него вытекает, что максимальная высота застройки — 27 м.
Но подводные камни остались. Неизвестно, в какой последовательности будет реализоваться проект: сначала стулья или деньги? То есть что построят раньше — парк или жилой комплекс? В одном из интервью владелец A Development Алексей Баранов заявил: «Условия таковы: если мы на 6 гектарах не создаем парк, то у нас этот участок город забирает. На другом, 4,8 гектара, мы реализуем ЖК «Рихерт&Парк». На такие условия согласился бы и последний, простите, дурак — построю себе Рихерт-ЖК, а парк вы как-то без меня… Интересно все же было бы подробнее ознакомиться с договором аренды и другими документами не только городским властям, но и рядовым жителям Подола и околиц.
Когда этот материал был готов, появилась неофициальная информация, что Алексей Баранов продал этот проект. Это, конечно, его право, и это значит, что спасение пивоварни Рихерта (памятника архитектуры) и очеловечение большой захламленной территории в центре столицы откладывается на неопределенный срок. К сожалению.
Негостеприимный Гостиный двор
История этой архитектурной жемчужины уникальна и драматична, а может превратиться в трагическую. Первый вариант Гостиного двора по проекту Луиджи Руска был закончен в 1809 году, но построен только первый этаж. Причина банальная — в магистрате не хватило средств на второй. После того Гостиный несколько раз достраивался, менял вид, но сохранился до 1976 года. К сожалению или к счастью (сегодня это сложно определить), старый Гостиный не пережил эксплуатацию под ним метро, хотя метростроевцы не стали его сносить (а такие планы были) и даже подстелили бетонную «подушку». Но Гостиный пошел трещинами, и его вынуждены были разобрать. Но ни у кого из тогдашних застройщиков или архитекторов не было той степени безвкусицы, жадности или жлобства, чтобы надумать построить на этом месте многоэтажный универмаг (так тогда называли торговые центры), государственный банк или райком партии. Решение восстановить Гостиный в первоначальном виде по проекту Луиджи Руска принял глава Госстроя Геннадий Злобин — именно его нужно считать крестным отец современного Гостиного.
За дело взялась тогда мало кому известная архитектор-реставратор Валентина Шевченко. Она поехала в Ленинград (Санкт-Петербург), где отыскала начальные чертежи Гостиного двора авторства Луиджи Руска 200-летней давности. Именно на их основе Валентина Шевченко разработала проект реконструкции.
Сегодня — пока что! — мы можем видеть Гостиный двор таким, каким его представлял сам Луиджи Руска. В целом, кажется, это уникальный в мировой практике случай — строительство объекта по такому древнему проекту.
Архитектор Валерий Сопилка объяснял мне: «С позиций высокого классического стиля арки Гостиного безупречны, а глубокие галереи, игра света и тени создают эффект легкости, почти невесомости всего сооружения. Если их застеклить, а внутренний двор накрыть стеклянной крышей — вся обворожительность Гостиного двора будет утрачена!». А именно такие планы были во времена президентства Виктора Януковича, когда придворный архитектор-застройщик Андрей Миргородский проектировал сделать это.
Правительство Николая Азарова постановлением КМУ от 15 августа 2011 года №1380 сначала вычеркнуло Гостиный из Государственного реестра памятников, а потом Законом Украины «О внесении изменений в некоторые законодательные акты Украины о содействии ипотечному кредитованию» (siс!) изъяло из Перечня памятников культурного наследия, не подлежащих приватизации (Закон Украины от 5 июля 2012 года № 5059-VІ).
Во сколько, вы думаете, оценили стоимость 1 кв. м этого, предположим, не памятника, но все же уникального здания? По цене квадрата типовой квартиры в банальной многоэтажке на Левом берегу, тогда — 8 тыс. грн!
Какова же настоящая, то есть рыночная стоимость такого сооружения, как Гостиный двор? Навел справки, и один из оценщиков назвал мне «скромную сумму» в 100 млн долл.! Без какой-либо реконструкции. В то же время официальная «оценка» этого объекта, так называемая остаточная стоимость, не дотягивает до 22 тыс. грн! Далее механизм завоевания Гостиного двора — законный, простой и очень дешевый. Если стоимость реконструкции, право на которую получила частная фирма «Укрреставрация», превысит 25% стоимости объекта, то он — согласно закону! — переходит в собственность «реконструктора». А следовательно, за несчастные 5,5 тыс. грн застройщик хотел получить целый Гостиный двор!
Недовольство общественности Киева вылилось в девятимесячную акцию протеста в самом Гостином, которую силой разогнал «Беркут» в феврале 2013 года. После Революции Достоинства и бегства Януковича суд отменил разрешение на реконструкцию, а Киевская городская рада — решение об отводе земли под реконструкцию Гостиного двора. Статус его как памятника общегосударственного значения был восстановлен, а договор аренды с «Укрреставрацией» — разорван. Гостиный вернулся в собственность государства. Формально его владельцем с 2019 года является Фонд государственного имущества Украины, и он находится в составе (на балансе) Государственного заповедника «София Киевская».
Победа, скажете вы? А вот и нет. Злая судьба и дальше преследует Гостиный. Через проломанную крышу дожди и морозы разрушают стены и фундаменты, внутри стоит вода по колено. Но новая власть — уже не Януковича, а президента Владимира Зеленского — «сидит» на этом дворе как собака на сене. Киеврада дважды принимала решение вернуть Гостиный в собственность громады Киева, мэр Виталий Кличко писал соответствующие обращения к центральной власти, но все напрасно. Так, может, именно сейчас, когда продолжается Большая война, пришло время передать Гостиный Киеву?
Столичная власть иногда умеет привлекать средства частных украинских и иностранных инвесторов на реализацию культурных и общественных проектов. Гостиный двор нужно спасти, иначе, как сейчас спрашивают активисты, за что мы тогда боролись?
Как превратить промзоны в общественные пространства?
Конечно, Гостиный двор — уникальный, но не единичный случай, когда государственные чиновники пытаются приватизировать (тем или иным способом) национальные и местные памятники ради банального обогащения. Результаты, как видно из последнего примера, не всегда совпадают с их намерениями, но они печальны. Законными методами — через суды — бороться против этого сложно. Теоретически можно подавать иск против государства Украина в целом, Фонда госимущества или заповедника «София Киевская» за ненадлежащее содержание памятника, но пока будут идти суды, предмет спора — памятник — может… исчезнуть. Поэтому активная общественность начинает «ломать заборы», то есть действовать методами, законность которых вызывает вопросы. Но в любом случае именно активность неравнодушных граждан неоднократно приводила если не к полной победе, то к остановке варварских намерений застройщиков.
И здесь решающую роль может сыграть местная власть, поскольку она априори заинтересована в поддержке громады. Также она заинтересована превращать мертвые сегодня промышленные зоны в окультуренные цивилизованные территории. Какие методы есть у нее?
Киеврада каждый год определяет ставки арендной платы за землю на основе денежной оценки земельных участков для каждого вида целевого назначения (это приложение к решению «О бюджете города Киева»). Для земель историко-культурного назначения, например, это 0,01%, для большинства других видов — 3%, а в отдельных случаях (для банков или АЗС) — 10%. Именно этот — экономический — рычаг может заставить арендаторов заброшенных или захламленных территорий приводить их в порядок — возвращать к активной экономической и общественной жизни. К сожалению, этот путь довольно тяжелый для чиновников КГГА, поскольку взыскать с арендаторов плату в случае возникновения задолженности можно только через суд, а расторгнуть договор аренды… тоже через суд! Очевидно, здесь законодатель ударил, как говорят, в штангу. По словам заместителя городского головы Владимира Бондаренко, город может получать от земельного налога и арендной платы ежегодно 7 млрд грн, но прогнозируемо получает только 3,9 млрд грн. С остальными недобросовестными плательщиками ведется постоянная борьба.
Но город имеет огромный резерв для расширения площади зеленых зон через увеличение арендной платы. Это, конечно, не исключает восстановления на этих территориях промышленно-технического потенциала.
Неприятные, но необходимые выводы
Примеры заброшенных памятников и территорий можно приводить бесконечно или почти бесконечно, потому что они спонтанно и неожиданно возникают в структуре города. Сейчас, во время войны, государство — в смысле президент, Кабинет министров и Верховная Рада — не имеют ни ресурсов, ни времени отвлекаться на то, что можно поручить власти на местах. Точнее сказать — не имеют права. Более того, государство не имеет возможности быть эффективным собственником, теоретически оно должно быть только эффективным охранником памятников, хотя это не всегда у него получается.
Марина Соловьева напомнила мне об усадьбе Сикорского, которую с большим трудом забрали у «застройщика», но она много лет пустует и разрушается — «находится в государственной собственности»! Потомки Сикорского приезжали в Киев и предлагали средства на ее восстановление. Корпорация Sikorsky Aircraft тоже предлагала, но их, кроме городской власти, никто не услышал. Представляете, КПИ имени Игоря Сикорского — есть, аэропорт имени Игоря Сикорского — есть, а дома, во дворе которого впервые поднялся в небо первый вертолет, — нет. Есть руины на балансе Минобороны. Конечно, сейчас оно тем более не будет спасать усадьбу Сикорского.
Следовательно, первый вывод: передать все памятники, которые сейчас приходят в упадок, в собственность местных громад (простым постановлением КМУ). Вывод второй: местная власть должна заставить владельцев или арендаторов заброшенных промышленных территорий придать им достойный вид — сугубо экономическими рычагами, о которых я написал выше.
И то, и другое сделать очень просто. Конечно, при желании власти в центре и на местах. И здесь влияние местных громад должно быть если не решающим, то решительным.

.webp)

